Vendita locale commerciale negozio a Civitanova Marche

Descrizione

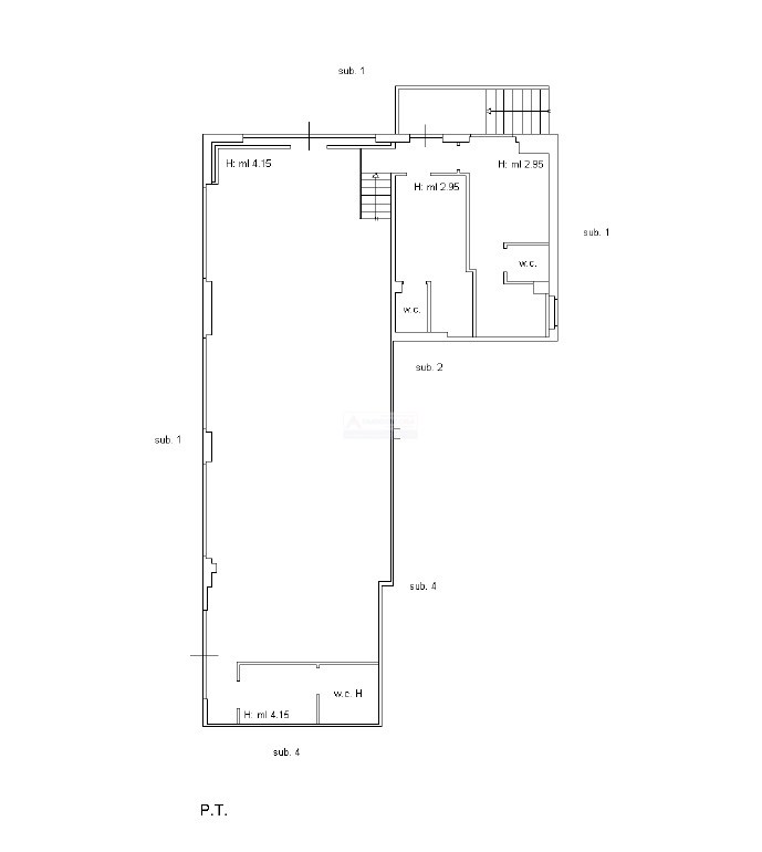
Locale commerciale – Spazio versatile ideale per palestra o attività polifunzionali Proponiamo in vendita locale commerciale al piano terra, attualmente configurato e attrezzato per attività fitness, con spazi già organizzati secondo le esigenze operative del settore. Caratteristiche principali: Superficie netta: circa 150 mq Altezza interna: 4,20 m Distribuzione funzionale e già suddivisa L’immobile si presenta oggi come palestra completa, con: area ingresso/reception sala principale dedicata all’attività sportiva spogliatoi separati per uomini e donne servizi igienici e docce locali accessori e ripostigli Stato e interventi: Nel 2013 l’immobile è stato oggetto di ristrutturazione straordinaria con cambio di destinazione d’uso da deposito/magazzino a laboratorio/palestra. Potenzialità d’uso: Grazie alle caratteristiche strutturali e alla distribuzione degli spazi, il locale si presta a molteplici destinazioni: attività fitness e wellness studi professionali o poliambulatori showroom e spazi espositivi attività ricreative e corsistiche Ulteriore valore aggiunto: È possibile destinare l’immobile anche ad attività commerciali che richiedono l’installazione di canna fumaria (quali ristorazione, gastronomia o simili), elemento essenziale per lo smaltimento dei fumi derivanti da lavorazioni alimentari . L’eventuale realizzazione dovrà essere conforme alle normative vigenti e ai regolamenti locali, che disciplinano installazione, sicurezza e autorizzazioni . Un’opportunità pronta all’uso e altamente flessibile Un immobile già predisposto e facilmente adattabile, ideale per chi desidera avviare o diversificare un’attività in uno spazio funzionale e con ampie possibilità di utilizzo. Per informazioni piu dettagliate l'agente immobiliare incaricato: Luca Campugiani 3358354646

€ 170.000,00

Specifiche locale commerciale negozio

Codice Annuncio: 1800
Prezzo
€ 170.000,00
Codice annuncio
1800
Dimensioni
160 mq
Anno di costruzione
1980
Tipologia
locale commerciale negozio
Contratto
vendita
Comune
Civitanova Marche
Zona
non specificato
Stanze
1
Camere
0
Bagni
2
Riscaldamento
non specificato
Posto auto
0
Categoria
commerciale
Classe Energetica
non specificato

Agente

Matteo Salvucci
Matteo Salvucci
338.7404514